Na sprzedaż nieruchomość składająca się z foremnej działki o pow. 1487 m2, na której znajduje się przestronny dom jednorodzinny w trakcie budowy.
Nieruchomość położona jest w gminie Dąbrówka, powiat wołomiński, w miejscowości Guzowatka. Dzięki dobremu dojazdowi do węzła na trasie S8, podróż samochodem do centrum Warszawy zajmuje około 35 min, a jadąc w przeciwną stronę w 18 min można dotrzeć do Zalewu Zegrzyńskiego.
Budynek mieszkalny znajduje się na działce o płaskim ukształtowaniu terenu i częściowo porośniętej drzewami. Działka posiada zapewniony bezpośredni dostęp do drogi publicznej.
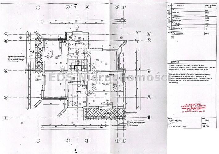
Na nieruchomości realizowana jest inwestycja polegająca na budowie budynku mieszkalnego jednorodzinnego, którego projektowana powierzchni użytkowa wynosi 306,2 m2, na którą to składa się powierzchnią mieszkalna o obszarze 265,84 m2 oraz dwustanowiskowy garaż w bryle budynku o powierzchni 40,36m2.
Budynek znajduje się w stanie surowym zamkniętym, bez instalacji, wylewek czy tynków wewnętrznych, a elewacja zewnętrzna wymaga odświeżenia.
Wyłącznie zakup gotówkowy.
Zapraszam do kontaktu i oględzin.